Büro
Projekte
Wettbewerbe
Haus des Buches
Technisches Buchhändlerhaus
Haus des Buches Leipzig
Holzhausenschule
Henninger Turm
Kita Wettenberg
Kita Aschaffenburg
Hotel und Restaurant Sababurg
Mehrzweckhalle Hartenrod
Aktuell
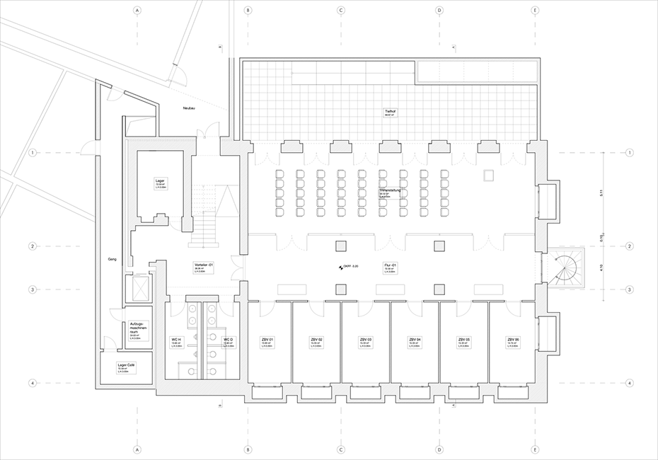
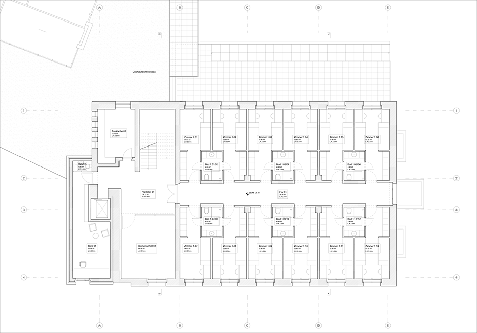
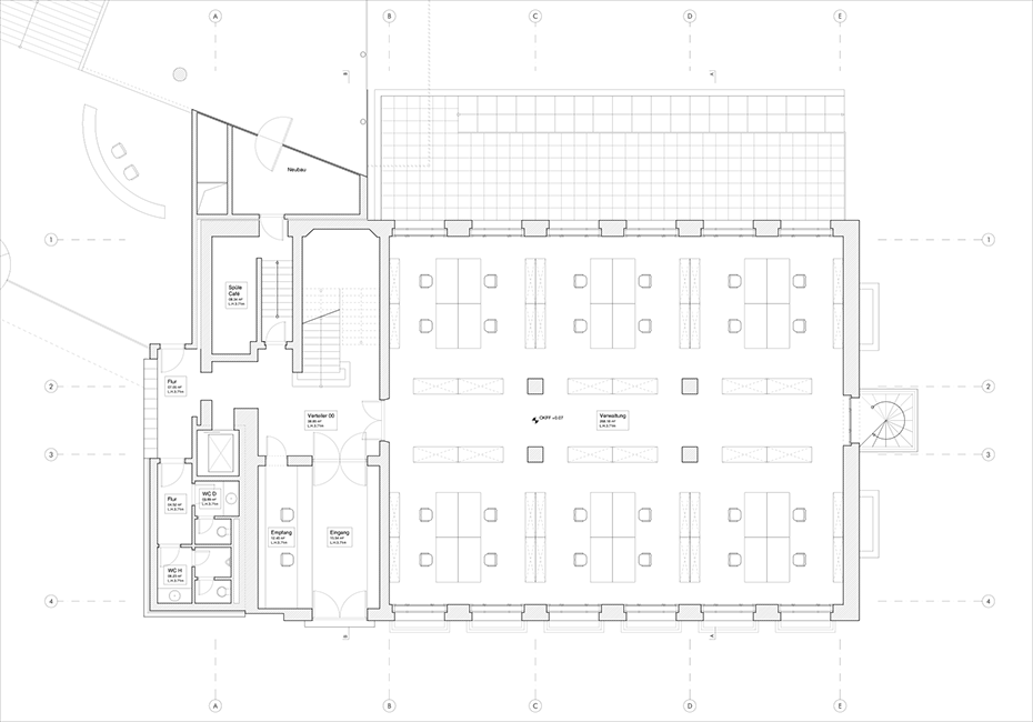
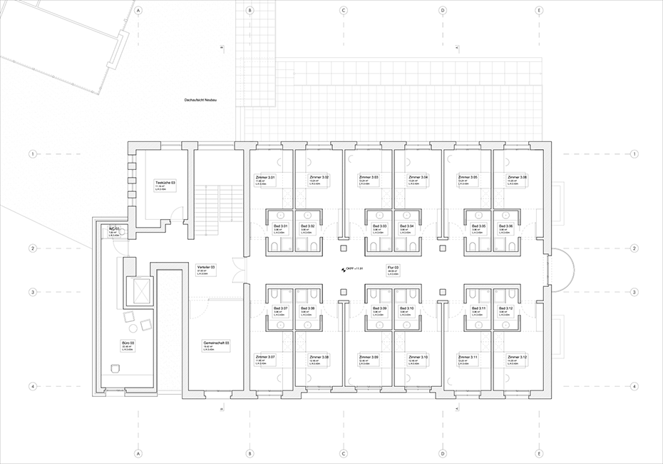
Umbau Haus des Buches,
Frankfurt a.M.
Projektbeteiligte und Mitarbeiter